From Fire Damage to Dream Home: What To Do When Your House Needs a Full Rebuild

The Story of Firehouse

Two years ago, one of our clients experienced what every homeowner fears.

A neighboring house caught fire. Within minutes, flames spread. Their 1908 historic home was severely damaged and had to be taken down to the studs.

If you’re reading this because you’re dealing with fire damage—or a major renovation—you’re probably asking:

  • What do I do first?

  • How long will this take?

  • Is it even possible to make this better than before?

The answer is yes. But only with the right plan and the right team.

A shocking moment that changed everything: As flames engulfed their neighbor's home, our clients faced a life-altering night that would lead to a remarkable transformation of their own historic residence.

Step 1: Accept That Scope Will Expand

When structural integrity is compromised, surprises are inevitable.

In this home, once walls were opened up, we had to:

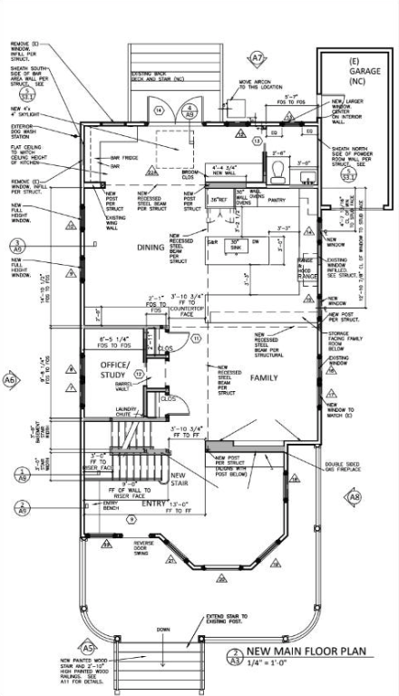
  • Reinforce the structure with steel beams

  • Lower the foundation to gain ceiling height

  • Re-engineer support systems

  • Rethink the entire floor plan

What began as a rebuild became an opportunity.

We added 1,000 square feet of usable basement space simply by lowering the foundation. That single move completely changed how the family could live in their home.

If you’re navigating a major renovation, understand this:
Hidden problems often create better long-term outcomes.

Step 2: Fix the Layout, Not Just the Finishes

One of the biggest mistakes homeowners make during rebuilds?
They recreate the same layout.

We didn’t.

We opened the main floor into a true open-concept design, improving flow between the kitchen, dining, and living spaces.

We relocated the staircase (more on that in another post) and created better connection points throughout the home.

If you’re rebuilding, ask:

  • Does this layout actually serve how we live?

  • Where does light flow?

  • Where does it get stuck?

This is your moment to fix what never worked.

Step 3: Build a Team You Trust

You cannot do this alone.

Our Firehouse team included:

  • Architect

  • Engineer

  • Builder

  • Designer

  • Stylist

Every discipline matters when structure is involved.

Homeowners often struggle to visualize potential. That’s normal. But you need professionals who can see beyond what’s currently standing—and guide you through permits, engineering, and design with confidence.

Trust is everything.

Turning Tragedy Into Artistry

We moved the kitchen from the south side of the home to the north.
We added a full bedroom and bathroom.
We reimagined the entry.

The final reveal? A space that feels intentional, grounded, and deeply personal.

The Visual Comfort chandelier in the dining room? A statement that anchors the entire space.
The custom millwork? A reflection of the home’s original character—reinterpreted.

Sometimes construction leads.
Sometimes design leads.
But together? They create something stronger than before.

Feeling Overwhelmed by a Remodel?

If you’re in the middle of renovation chaos—or planning one—our Substack is where we break down real projects, real decisions, and real budgets.

We share:

  • Remodel strategy

  • Layout problem-solving

  • Investment priorities

  • What we’d never do again

👉 Subscribe so you don’t miss what’s next.

Previous
Previous

How to Master the Wood-on-Wood Kitchen (Without It Feeling Heavy or Dated)

Next
Next

How to Design a Nursery That Grows With Your Child (So You Don’t Redo It in 5 Years)